

玻璃鋼格柵板制品具有輕質、高強、導熱系數低、穩固、堅韌、抗滑、不需要維護等特點,適用工作環境溫度-50℃-90℃,在有沖擊荷載作用下不產生火花,且色彩豐富,開洞切割靈活,施工和運輸方便,特別是其絕緣、耐腐、無電火花等特性可滿足石化行業一些特殊場合的要求。廣泛應用于石油化工企業操作平臺、設備檢修平臺和電纜溝、排污溝、雨水明溝等各種蓋板。
選用說明和示例
(一)、選用說明
1、根據主、次梁的布置確定板的跨度,板的跨度按照主、次梁間的最小距離確定,當大于表中最大跨度時應添加次梁。
2、根據平臺格柵選用表選擇格柵規格時,均布荷載u和跨中線荷載C不能同時作用于同一跨格柵上。
3、玻璃鋼格柵板可作為連續板多跨連續布置,荷載取值同單跨板。
4、當實際需要板長或板寬與圖集中提供不同時,可選擇尺寸大一號的格柵板,沿格柵肋切割,切割后進行表面磨光。
5、根據荷載大小及板的跨度選擇格柵板的規格,同一平臺或同一工程宜選用相同厚度、單元格的格柵板。
(二)示例
設計基本條件:
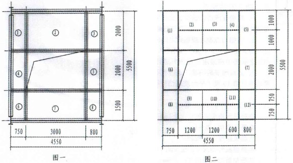
操作平臺結構布置(主、次梁)及平臺開洞如圖一所示,平臺上考慮均布活荷載為4kN/m2,要求采用玻璃鋼格柵進行平臺布置。設計允許撓度為1/100。
選用步驟:
1、根據操作平臺結構布置圖,區域內最小跨度超過選用表中最大跨距的有②、⑦區域,跨距分別為2米、1.5米,可選用2米、1.5米長格柵板,但直接放置不能滿足變形要求,故應增設次梁,減小板跨度。其余板擱置跨度750mm和800毫米.
2、添加次梁后(次梁位置如圖二中虛線所示),各區域布置板的最大跨度為1000mm,查平臺格柵最大負載表,選用38厚、40x40玻璃鋼格柵板。
3、根據38厚玻璃鋼格柵板的整板外型尺寸進行平臺格柵平面布置,如圖二所示(含對角細實線的方格表示一塊板)共分為12塊板,各板型號如下:
(1)、(5)、(6)、(7):PT/800×2000/40×40/38 (2)、(3):PT/1200×2000/40×40/38 (4):PT/600×2000/40×40/38 (8)、(12):PT/800×1500/40×40/38 (9)、(10):PT/1200×1500/40×40/38 (11):PT/600×1500/40×40/38



